© D-works Co., Ltd .
lodging

海外のデザインでもなく、純和風でもない。
どこか懐かしく、どこか新しい──そんな“和と北欧”が調和する家が完成しました。
例えば、トイレの背面には建築家の腕が光る造作家具を配置し、
静けさの中に温もりを感じる照明計画や、天然木の風合いを生かしたインテリア。
落ち着きとやさしさが共存する上質な空間です。
上質でありながら、手が届きやすい現実的な設計。
心地よさとデザイン性を両立した、親しみのある住まいです。
暮らすほどに心が穏やかになる、そんな“ちょうど良い上質”を体感してください。

外観
ゆるやかな石階段と植栽が導くエントランスが印象的な外観。直線的なフォルムの中に、木々の緑と天然素材の温もりが調和します。やわらかなベージュトーンの外壁が光をやさしく反射し、街並みに溶け込みながらも上品な存在感を放つ佇まいです。

エントランス
扉を設けず、リビングへと自然につながる開放的なエントランス。入った瞬間に広がる視界と光の抜け感が、空間に心地よい奥行きを生み出します。エントランスの一角には、お出かけ前の身だしなみチェックに便利な化粧台を設置。収納を一体化することで、日用品や小物もすっきり整います。限られた空間を無駄なく活かしながら、美しさと機能性を両立したデザインです。

リビング
木のぬくもりとグレージュの壁が調和する、落ち着いたリビング。吹き抜けのある開放的な空間に、やわらかな光が広がります。テレビ背面には色味を抑えたグレーの壁を設け、シンプルながらも上質な印象を演出。穏やかな時間がゆるやかに流れる、心を整える空間です。

キッチン/ダイニング
キッチンには、デザインと機能を兼ね備えたGRAFTEKT(グラフテクト)デュエアイランド型を採用。キッチンハウス譲りの品質をそのままに、手の届きやすい価格で上質な空間を実現しました。素材や色味を統一し、カップボードやテーブルも同トーンでコーディネート。日々の食卓が、自然と絵になるような落ち着いたダイニングです。

造作洗面カウンター
玄関近くに設けた2ボウルの造作洗面台は、帰宅後すぐに使える便利な動線設計。淡いトーンのタイルとマットなカウンターがやさしく調和し、空間全体に統一感をもたらします。デザイン性と機能性を両立しながら、毎日の所作を少し特別にしてくれる洗面スペースです。

主寝室
段差を活かした“ゾーニング設計”がポイントの主寝室。ベッドスペースを一段上げることで、空間に立体感と落ち着きを演出します。朝の光がやわらかく差し込み、静けさとあたたかさに包まれるような心地よい時間を過ごせます。

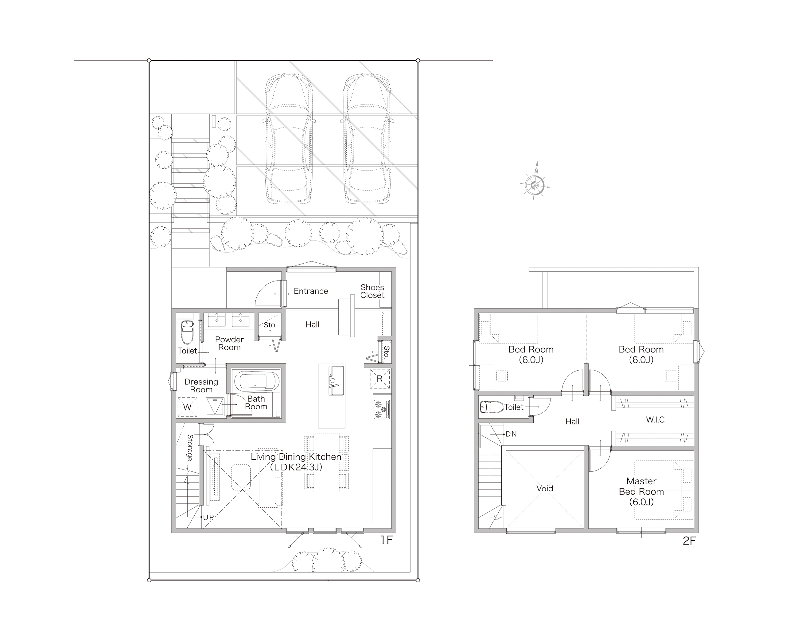
| 土地面積 | 46.53坪 |
|---|---|
| 建物面積 | 31.30坪 |
| Ua値 | 0.41w/㎡k |
| C値 | 0.3㎠/㎡ |
| 間取り | 3LDK |
| 所在地 | 大津市大平1丁目11-19 |
| イベント 開催日程 |
完全予約制 |
| 開催時間 | 16:00~10:00 |
| 宿泊費用 | 5,000円(税込) |
| 駐車場 | あり |